Euroster UNI3 - regulátor programovateľný pre 3 vykurovacie okruhy
Kód: EUROSTER UNI 3Súvisiaci tovar
Podrobný popis
Euroster UNI3 - automatický (programovateľný) regulátor pre 3 vykurovacie okruhy.
Ovládač pre vykurovací systém založený na počasí.
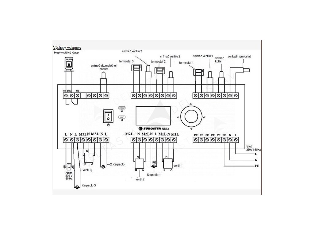
Euroster UNI3 je určený pre riadenie 3 okruhov ÚK so zmiešavacími ventilmi (napríklad radiátor a systém podlahového vykurovania).
Popis produktu :
- možnosť nezávislého nastavenia teploty a krivky počasia pre každý okruh
- umožňuje nezávislé ovládanie každého okruhu spolu s izbovým termostatom a týždenným programom
- ovláda - hlavný zdroj tepla vlastným regulátorom napr. plynový kotol a prídavný zdroj tepla - ručne ovládaný - napríklad kotol na tuhé palivo, krb
- ručné, alebo automatické prepínanie letnej / zimnej sezóny - možné nastavenie počiatočného a konečného dátumu vykurovacieho obdobia
- výber režimu prevádzky obvodu zapnutím a vypnutím čerpadla, alebo znížením teploty zmiešavacím ventilom s trvalo zapnutým čerpadlom
- využitie tepla vygenerovaného v prídavnom zdroji tepla (krb, kotol na tuhé palivo)
- výstup pre kotol, alebo ovládanie prídavného vykurovacieho zariadenia
- komunikácia - možnosť kombinovania niekoľkých riadiacich jednotiek UNI3 a UNI2 za účelom ovládania prídavných systémov
- možnosť vypnutia ovládania zmiešavacieho ventilu, alebo úplné vypnutie okruhu
- funkcia anti-stop - ochrana čerpadiel a ventilov pred skratom
- záznamy o nebezpečných a poplachových udalostiach
- ochrana proti prehriatiu pre každý okruh
- signál pri každom presiahnutí povolenej teploty
- možnosť zapnutia funkcie proti zamrznutiu
- spolupráca s distribútormi podlahového vykurovania
- jazyky rozhrania ovládača : čeština, angličtina, nemčina, poľština, ruština, maďarčina
- vrátane senzorov
Technické parametre :
- určené pre : 3 centrálne vykurovacie okruhy s čerpadlami a zmiešavacími ventilmi
- zdroj : 230 V 50 Hz
- maximálne spotreba : 4W
- maximálne zaťaženie výstupu : 100 W (každý výstup)
- výstupy regulátora : relé, napäťové typy pre čerpadlá, servopohony, relé alarmových výstupov, beznapäťové typy ovládačov kotla, alebo iných vykurovacích zariadení
- rozsah merania teploty : - 30°C ........ + 110°C
- rozsah regulácie teploty : 15°C ........ + 90°C
- presnosť regulácie teploty : 1 °C
- presnosť merania teploty : 1°C
- rozsah pracovnej teploty : 5°C ...... 40°C
- vizuálna signalizácia : podsvietený LCD display, LED RGB
- skladovacia teplota : 0°C ....... 45°C
- stupeň ochrany : IP 20
- farba : sivá
- montáž : lišta 35 mm, do vnútra elektrickej skrinky
- hmotnosť (ovládač s káblami) : 0,545 kg
- maximálne rozmery (ŠxVxH) mm : 159,5/90/59 mm
Balenie obsahuje :
- ovládač UNI3, napájací kábel, teplotné senzory 6 ks, klipy pre montáž kábla snímača, skrutkované kotvy, manuál
Dodatočné parametre
| Kategória: | regulácie pre čerpadlá a kotolne |
|---|---|
| Záruka: | 2 roky |
| Hmotnosť: | 0.6 kg |
Hodnotenie tovaru
Buďte prvý, kto napíše príspevok k tejto položke.
Diskusia
Buďte prvý, kto napíše príspevok k tejto položke.
